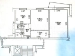
Продается 2-х комн. квартира, 54 кв.м., 9/9 эт
| Стоимость | 6 150 000 |
|---|---|
| Балкон | Балкон |
| Доля в квартире | Нет |
| Комнат в квартире | 2 |
| Площадь, кв.м. | 54 |
| Площадь кухни, кв.м. | 8 |
| Этаж | 9 |
| Этажность | 9 |
| Материал стен | Панельный |
| Населенный пункт | Таганрог |
|---|---|
| Улица | улица Мариупольское Шоссе |
| Номер дома | 27-1 |
КВАРТИРА ПРОДАЕТСЯ С МЕБЕЛЬЮ И ТЕХНИКОЙ:
Изолированная 2-х комнатная квартира, не угловая, в самом сердце самого лучшего района Таганрога (р-н Русское поле). Недавно сделан качественный ремонт всего, с заменой труб отопления, канализации, водопровода, радиаторов отопления. В квартире 3 встроенных шкафа, выполненных в одном стиле.
Межкомнатные двери заменены. Потолки натяжные, с комбинированным освещением и всевозможными подсветками в коробах. Везде ламинат, без порожков, в с/у плитка. Окна все металлопластиковые, балкон тоже. В спальне 3х камерный стеклопакет. Всё делалось качественно и для себя. В квартире зимой очень тепло и тихо.
Адекватные и тихие соседи. Над 9м этажом есть тех этаж, лифт свежий, работает исправно.
КВАРТИРА ПРОДАЕТСЯ С МЕБЕЛЬЮ И ТЕХНИКОЙ:
Зал: Сплит система, раскладной угловой диван, шкаф-купе, комод под телевизором, шторы гардины, люстра, точечное освещение,
Спальня: 2-х спальная кровать с матрасом, 2 тумбочки, шкаф купе, люстра, точечное освещение, шторы и гардины.
Коридор: Туалетный столик с зеркалом, шкаф-купе, люстра, точечное освещение.
Cly: Всё, кроме стиралки.
Кухня: Гарнитур, холодильник, варочная и духовой шкаф, микроволновка, стол стекло матовое, 4 стула мягких, шторы гардины.
Коридор: Туалетный столик с зеркалом, шкаф-купе, люстра, точечное освещение.
C/y: Всё, кроме стиралки.
Кухня: Гарнитур, холодильник, варочная и духовой шкаф, микроволновка, стол стекло матовое, 4 стула мягких, шторы гардины.
Балкон в стадии ремонта, отделка демонтирована.
В непосредственной близости школы и детские сады, рынок "Русское поле" поликлиники, супермаркеты, гипермаркеты (Лента, Магнит Экстра), пункты выдачи и другие магазины различного профиля, остановки общественного транспорта в любой конец города, кафе, рестораны, банки, МФЦ, почта, фитнес, кинотеатр, ТЦ Лето, ТЦ Калинка, Парк 300-летия Таганрога для прогулок и отдыха.
1 взрослый собственник более 5 лет, без обременений.





















